客房
客房
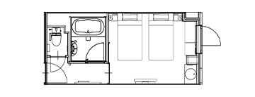
3-10楼的双床房。
外型小巧,简单大方,机能性极佳。可满足与家人或朋友一起观光或商务使用等各种需求。
浴室、盥洗、厕所独立式设计也是重点所在。床下空间可收纳行李箱等。
电视/免费高速无线网络/冰箱/电热水壶/电话/保险箱/吹风机/卷发棒/床下储物空间/枕边插座/Hits(无限量YouTube观看)/带冲水功能的马桶/独立空调
客房设置
浴巾/面巾/浴垫/洗发水/护发素/沐浴露/洗手液/晚装/拖鞋/纸巾
洗漱用品自助餐 (1F前台)
浴巾/卸妆乳/洗面奶/化妆水/乳液/面膜/化妆棉套装/发刷/剃须刀/剃须膏/牙刷·牙膏/咖啡/奶油粉/糖/搅拌棒/煎茶/路易波士茶/苹果茶/大吉岭茶/伯爵红茶/沐浴露 (收费)
空气净化器/加湿器/充电器/延长线/熨斗/熨衣板/冰桶/指甲刀/裤线热压机/鞋拔/轮椅/雨伞
入住... 15:00/退房... 11:00
接受 VISA / JCB /万事达卡/ AMEX / UC / DC / NICOS / Diners Club / UnionPay。如需使用其他银行卡,请联系酒店。
交通IC卡(Suica、PASMO、ICOCA等)/ Rakuten Edy / WAON / iD / nanaco / QUICPay
根据本酒店的住宿条款,从住宿基本费用中收取前一天20%、当天80%、不住宿100%的取消费用。但是,根据方案的不同,取消规定也有不同的情况。请确认各套餐的详细内容。
全馆可免费使用舒适的Wi-Fi服务。
YouTube在电视屏幕上无限制访问。使用智能手机投射 (镜像) 也是可能的。
房间里每人准备了一瓶。
行李箱等大件行李也可收纳。房间很宽敞。
枕边备有USB接口和插座。
浴室,厕所,洗脸台是完全独立的类型。充分利用每个空间的功能。
浴缸和冲洗处分开的浴室。宽敞的浴缸两个人也可以进去。
人气面膜等护肤用品也很丰富。详情请见这里。
※图片可能与实际商品有所差异
对应信用卡·提前结算。可进行非接触&智能入住。
带新干线的住宿方案由Time Design介绍。
关于住宿+新干线的咨询、预约的变更或取消等请联系Time Design株式会社。
Time Design株式会社
TEL.0570-039866 (营业时间:周一~周五10:00-17:00※周末及节假日休息)